Содержание
Появляется все больше людей, склонных избавляться от стен в своих квартирах, чтобы сделать пространство открытым и светлым. В квартирах-студиях, как и в обычных однушках, появляется, как правило, одна и та же проблема: как визуально отделить спальню, то есть кровать, от всего остального? А ведь это действительно хочется сделать хотя бы условно. Приемов существует множество, одни прячут кровать от глаз, другие делают на ней акцент, а третьи позволяют сочетать эти режимы.
Частичная стенка
Перегородка позволяет разделить пространство на две комнаты, но не перекрыть весь свет и воздух. Ее можно сделать в половину высоты комнаты, диагональную или с прорезямиокнами. Перегородка может быть и сплошной высокой, но тогда лучше чтобы это была колонна или стенка шириной максимум с кровать. Минус этого способа в немобильности перегородки.

Кровать в нише
Если планировка позволяет спрятать кровать в отдельную нишу, то это уже само по себе зонирование. У мини-комнаты остается открытой лишь одна стена, которую легко прикрыть чем-то при необходимости. Если ниша в комнате не предусмотрена, ее можно сделать с помощью шкафа или гипсокартонной перегородки.
Кровать на подиуме
Кровать, поставленная на высокий подиум, визуально превращается в отдельную зону. К тому же появляются дополнительные места для хранения в самом подиуме, что очень ценно в маленьких квартирах. Если есть желание дополнительно отгородиться, можно дополнить подиум любыми временными перегородками.

Кровать внутри подиума
Этот способ решает проблему скрытия кровати, когда комната работает в режиме гостиной или нужно сэкономить место. Но если один смотрит телевизор, а другой хочет спать в темноте — кровать в подиуме этот конфликт интересов не разрешит. Кровать может задвигаться в подиум, или находиться прямо в нем, закрываясь «крышкой», пока не используется.

Больше идей с подиумами: «Подиум в интерьере»
Кровать-чердак
Самый радикальный способ подъема кровати — кровать-чердак. Спрятавшись под потолком, вы будете ощущать себя отдельно от всего мира, а пришедшие гости вряд ли разглядят незаправленную постель.

Стеллаж
Эта перегородка четко обозначает разделение зон, но при этом пропускает свет и не сильно утяжеляет пространство. И, конечно, добавляет всеми любимые места для хранения! Некоторые полки такого стеллажа лучше оставить пустыми или заполнить прозрачными предметами, как вариант — приобрести невысокий стеллаж или тумбу. Вместо стеллажа может быть и массивный шкаф — но вам же нужно больше света и воздуха, не так ли?

Ширма
Самая простая и быстрая временная перегородка — ширма. Прячет кровать от посторонних глаз и частично блокирует свет. Когда нужна — поставил, когда не нужна — сложил и убрал. Более того, ширмы бывают очень красивые и могут стать сокровищем интерьера. Полюбоваться на ширмы: «За завесой тайны: ширмы в интерьере».

Шторы
Универсальный способ отгородиться от окружающего пространства. Если шторы достаточно плотные, они будут блокировать не только свет, но и часть запахов и звуков, что очень удобно. Легкие шторки или балдахин могут стать чисто визуальным разграничителем.

Экран для проектора
Как мы заметили в этом и в этом проектах, что дизайнеры все чаще объединяют приятное с полезным и зонируют кровать экраном для проектора. Одним движением экран опускается из потолка над кроватью, перекрывая вид на нее и превращая комнату в гостиную с домашним кинотеатром.

Раздвижные двери
В открытом состоянии раздвижные двери будут лишь обозначать границы зон, а в закрытом полностью создавать ощущение двух разных комнат: звуки и запахи будут приглушаться, как и свет, если двери не прозрачные.

Стеклянные стенки
Это хороший способ, если вам хочется отдельную спальню, но на нее не хватило окна. Если окружить кровать стеклянными стенами, то это надежная блокировка звуков и запахов. Дополните куб шторами, которые можно задвигать на ночь или перед гостями, и комната готова!

Смешиваем
Не бойтесь сочетать вышеописанные приемы, чтобы добиться самого лучшего результата в вашем случае. Например, кровать в нише, на подиуме и закрытая шторой — почему бы и нет?

Или подиум плюс гипсокартонная перегородка плюс невысокие шкафчики, как сделали герои нашей статьи «Стильная однушка 40м2 в Москве».

Если вы живете в однушке с детьми, для вас будет полезным этот материал: «Детская зона в спальне родителей».
![]()
Само название жилого комплекса TriBeCa Apartments, в котором планирует жить владелица этого интерьера, напоминает о районе в Нижнем Манхэттене. Нью-йоркский Трайбека облюбовала местная богема: художники, актеры, модели и другие знаменитости. И дизайнеров Павла Годяева и Евгения Жданова из студии GP Project это вдохновило на стиль интерьера апартаментов – американскую классику.
Формально квартира сдавалась без отделки и со свободной планировкой, но по факту свободы тут было мало. Необходимо было учесть расположение стояка инженерных коммуникаций, вытянутую форму квартиры и, главное, панорамное окно в торцевой стене – единственный источник естественного освещения. Кроме того, заказчица мечтала об изолированной спальне, в которой будет много солнечного света.
Для решения этой непростой задачи дизайнеры разработали 3 варианта планировок в 6–7 вариациях, но самой лучшей оказалась самая необычная. Общее помещение не стали разделять капитальными стенами, а ограничились лишь стеклянной перегородкой. Она смотрится необычно и современно, но не перегружает интерьер, поскольку абсолютно прозрачна.
Но спальня все же пространство интимное. Поэтому по периметру перегородки предусмотрели электрокарниз, благодаря которому достаточно нажать на кнопку культа, чтобы закрыть штору и уединиться. А стена у кровати превратилась в огромное мягкое стеганое изголовье, как в настоящем классическом будуаре.
Основную систему хранения разместили в прихожей – в коридоре вдоль всей стены установили вместительный шкаф для одежды и открытые полки для книг и необходимых мелочей. Дополнительно в гостиной есть небольшой комод под телевизором, в спальне – прикроватная тумбочка, а на кухне – линейный гарнитур с двумя рядами шкафчиков под самый потолок. У входа в прихожей появилась зеркальная консоль для ключей. Ее же можно использовать как туалетный столик.
Американская классика славится обилием декора и аксессуаров, но на скромной площади их не должно быть чересчур много. Поэтому дизайнеры совместили красоту и функционал – использовали декоративные светильники. Над мягкой зоной в гостиной появились подвесы-обручи, по обе стороны от кровати в спальне – сияющие стеклянные шары, а в углу установили несколько свечей в изящных подсвечниках.
Конечно, для полного соответствия стилю интерьеру недостает симметрии. Полноценная диванная группа и пара шкафов-витрин только загромоздили бы и без того небольшое помещение. Зато нашлось место для электрокамина, который вмонтировали в комод под телевизором. И именно он стал центром гостиной, вокруг которого будут собираться близкие и друзья хозяйки дома.
Планировка
Фото квартиры до ремонта
Хотите, чтобы ваш проект был опубликован на INMYROOM? Присылайте фотографии / 3D-визуализации на wow@inmyroom.ru
Читайте также:
Создайте интерьер с товарами из магазина INMYROOM:
Как разместить полноценную кровать в гостиной или комнате однокомнатной квартиры. Сравним проекты дизайнеров


1. Спальня за стеклом
Место: г. Сочи
Авторы проекта: GraniStudio
Размер: квартира-студия 55 кв.м
Владелец хотел сохранить ощущение простора, которое давали панорамные окна с видом на море. Требовалось использовать в дизайне антивандальные материалы, поскольку время от времени квартира должна сдаваться.
Стеклянные перегородки выполнили из толстого закаленного стекла — вкупе с плотными шторами они дали достаточную шумоизоляцию. Эффект, конечно, не сравнимый с полноценной стеной или перегородкой, но вполне ощутимый.

Особенности планировки: Решение со стеклянными перегородками позволило разместить спальную часть у окна, сделав её уединенной, но не закрывая свету доступ к кухне и дальним углам. Это помогло сохранить простор в студии. Можно было, конечно, разместить небольшую и довольно темную спальню на месте кухни. Но от такого решения отказались в пользу стеклянных перегородок: воздух и простор — важнее.
Системы хранения сосредоточены в прихожей: там находятся шкаф для верхней одежды, гардеробная и холодильник.


Неожиданные проблемы: Стеклянные перегородки для спальни не проходили по габаритам в лифт. Пришлось поднимать их на седьмой этаж по фасаду — с помощью промышленных альпинистов.
БОЛЬШЕ ФОТО…
Все кадры из этой квартиры и другие проекты дизайнера — в портфолио GranniStudio
__________________________

2. Спальня, открытая к кухне
Место: Москва, район Нового Арбата
Автор проекта: Юлия Кирпичева
Размер: студия 29 кв.м
Владелица просила предусмотреть отдельную гардеробную, полноценную кровать (минимум 160х200) и раскладной диван для гостей. И все это на 29 кв.м. Причем в квартире есть газовая плита, ограничивающая возможности перепланировки. Решение было одно: использовать каждый сантиметр.

Особенности планировки: Планировочное решение во многом определила… гардеробная — у заказчицы много вещей, одежды и обуви. Причем ставить шкаф хозяйка категорически не хотела. Гостиную-спальню пришлось планировать «по остаточному» принципу.

Используя классическую систему осей, в центре Юлия разместила двуспальную кровать, а в ее изножье поставила диван. Так сложилась функциональная зона, где к кровати можно подойти с двух сторон.
Обратите внимание: Кухню, в которой есть газ, объединить с гостиной по требованиям БТИ нельзя. Между двумя комнатами обязательно должна быть либо дверь, либо сдвижная перегородка. Здесь между кухней и гостиной — широкий проем, в котором смонтировали перегородку «карманного типа». Когда полотно задвинуто на место парковки, создается ощущение объединенного пространства.

В проекте использовано винтажное кресло (Италия, 1950 – 1960-е) из Repeat story, которое отреставрировали и переобили; диван и столики ИКЕА; текстиль КАДО; автор картины на первом кадре в проекте — Григорий Рощин
БОЛЬШЕ ФОТО…
Остальные кадры из этой квартиры и другие проекты дизайнера — в портфолио Юлии Кирпичевой

3. Спальня за камином
Место: Новосибирск
Автор проекта: Татьяна Лейтан, Leytan Design
Размер: студия 39 кв.м
Изначально у этой квартиры неудобная вытянутая планировка, где всё на виду. Причем квартира просматривается насквозь буквально от входной двери. Заказчики просили полноценную спальню. Но любые стены перекрывали единственное окно.

Планировка квартиры до и после ремонта
Особенности планировки: Застройщик отвел для кухни маленькую нишу, где не получилось бы разместить нужную технику. А после сдачи дома выяснилось, что трубы оказались совсем не там, где было указано на плане. Дизайнерам пришлось «на лету» придумывать новый план размещения сантехники и по сантиметрам вымерять всё, вплоть до размера унитаза. Прямо на стройке делали раскладку плитки, чтобы всё вписалось как должно.

Конструктив дома позволил изменить планировку, выделив скрытую от двери спальню и небольшую гостиную. Кровать спрятали за мебельной перегородкой, в которую встроен камин.
Квартира получилась светлой и воздушной. Вся корпусная мебель сделана на заказ. Перегородка с камином не только скрывает спальную часть, но и работает стенкой для телевизора. При необходимости её можно легко демонтировать, если когда-нибудь хозяйка решит изменить интерьер.

В проекте: инженерная доска «Мануфактура паркета»; текстиль DDC, Daylight; стулья и журнальный столик Barcelona Design; белый стул Lars, Julia Grup; декор — салон HomeDecor; камин Dimplex; диван ИКЕА; ковер Grand Carpets
БОЛЬШЕ ФОТО…
Остальные кадры из этой квартиры и другие проекты дизайнера — в портфолио Татьяны Лейтан

4. Спальня за… обувницей
Место: Санкт-Петербург
Автор проекта: Наталья Сычева
Размер: однокомнатная квартира 38 кв.м (спальня-гостиная 18 кв.м)
Хозяйка работает и живет на два города. Она не любит съемное жилье и при этом не планировала вкладываться в квартиру для кратковременных остановок. В процессе проектирования стало ясно, что заказчица останется в Петербурге надолго — скоро она планирует купить квартиру побольше.
Владелица просила совместить в комнате функции гостиной и спальни, но обязательно разделить их; сделать гардеробную и места для хранения обуви. Для нее было важно поставить полноценную кровать, а в гостиной части — большой раскладывающийся диван.

Особенности планировки: Пространство нужно было зонировать так, чтобы раскрыть его и не перегрузить. На гардеробную смогли выделить только 3 кв.м. Этого только-только хватало для одежды, для обуви места уже не было. Тогда дизайнер заменила стену, отделяющую спальню от коридора, двухметровой тумбой — с местом хранения внизу и пропускающей свет резной частью наверху. И этим решила сразу несколько задач: зонировала спальню, организовала место для хранения 35 – 40 пар обуви и визуально раскрыла пространство за счет резной перегородки.


В проекте: резная перегородка сделана в мастерской «Русский Мастер»; кровать Ascona; п рикроватный столик Resistube; л ампа Zara Home; т оршер и ковер ИКЕА; декор и текстиль H&M Home; к ресло Home Spirit; д иван « Неаполь » , Di-Van; шторы из салона штор Fiera; фактурная штукатурка на стенах Cebos
БОЛЬШЕ ФОТО…
Остальные кадры из этой квартиры и другие проекты дизайнера — в портфолио Натальи Сычевой

5. Спальня в нише
Место: Московская область
Автор проекта: Артём Попов
Размер: квартира 69 кв.м
Это была квартира со свободной планировкой. Владельцы попросили совместить кухню и гостиную, разделив места для отдыха и готовки. При этом обязательным условием стало размещение кровати: родители устали от раскладных диванов. Проблему запахов решили установкой мощной вытяжки и канальной системы вентиляции. Проработали систему отведения воздуха.

Особенности планировки: Основная «фишка» этого проекта — наличие многофункциональных ниш. Они позволяют задействовать каждый сантиметр площади и придают интерьерам визуальную динамику. Кухню соединили с гостиной-спальней, но отделили место для сна плотными шторами со скрытыми креплениями.
Помимо текстиля, роль своеобразного разделителя играет сложное устройство потолка и стены. Они формируют куб вокруг просторной двуспальной кровати. Подвесной потолок опущен на 10 см: там проложили слой шумоизоляции.

Кровать оснащена качественным матрасом, на котором комфортно спать. В нише неподалеку можно хранить мелкие вещи. Под постелью организовали выдвижные ящики, где хозяева хранят постельное белье, личные вещи, складные стулья и даже ёлку.
В гостиной части поставили стол-трансформер с удобной системой хранения. При необходимости у него откидывается крышка, и на поверхности можно разместить ноутбук. От традиционного для гостиной дивана не отказались — он стоит почти в центре комнаты. Благодаря компактной форме и невысокой спинке эта модель не загромождает пространство, смотрится лаконично и аккуратно.

В небольших квартирах вопрос хранения встает особо остро, поэтому даже консоль оснащена шкафчиками. Один из них с секретом. В доме, где есть маленькие дети, важно предусмотреть тайник для аптечки, швейных принадлежностей и всего, что не должно попасть ребенку в руки. Тайник в консоли — на магнитном замке, открыть его смогут только родители.
БОЛЬШЕ ФОТО…
Остальные кадры из этой квартиры и другие проекты дизайнера — в портфолио Артёма Попова


6. Спальня с плиткой в изголовье
Место: Москва, TriBeCaApartments
Автор проекта: Алина Лютая
Размер: апартаменты 43 кв.м
Заказчик хотел создать холостяцкое гнездо с элементами лофта и обязательной гардеробной.
Особенности планировки: Дизайнер предложила несколько планировок, и заказчик выбрал вариант, где спальня частично отделена от гостиной высокой перегородкой. Большую часть бетонного потолка не зашивали, оставили видимой. Для отделки использовали цемент и штукатурку, а за изголовьем кровати уложили широкоформатную плитку. В прихожей в швы между плитками интегрировали металлические вставки. А в качестве акцентов использовали трехметровые балки в отделке из натурального шпона.


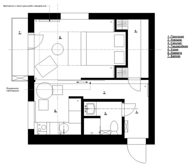
7. Спальня за реечной перегородкой
Место: Екатеринбург
Автор проекта : Александра Никулина, TrioDesign. Уютные интерьеры
Размер: квартира 42 кв.м.
В однокомнатной квартире решили объединить пространство кухни и единственной комнаты. Хотя пространство небольшое, получилось выделить места для хранения: в образовавшиеся ниши встроили шкафы для хозяйственных мелочей и одежды, сделали гардеробную.

Особенность планировки:
Владелец хотел разместить в комнате и кровать, и полноценный диван. При прежней планировке помещался только небольшой диванчик (до 1,6 м длины) на кухне и кровать в отдельной спальне, при этом оба пространства были затесненными — там сложно было бы принять гостей. При объединении комнат спальную часть решили отделить деревянным брусом, который смотрится как часть кровати.


8. Спальня за перегородкой
Место: Москва, Сколково-парк
Авторы проекта: Алёна Мышкина, Дарья Луковникова
Размер: квартира 50 кв.м
Владелец, молодой человек, просил использовать в интерьере стилистику американского лофта. А еще — найти способ организовать место для полноценной кровати и гостиной.


Инженерная доска под маслом TopWood; кровать, прикроватный столик, комод My America; подушки, ваза на столе и декор на комоде Crate& Barrel; столярные изделия — Игорь Макаров; текстиль — Galleria Arben
СМОТРИТЕ ТАКЖЕ…
Остальные кадры из этой квартиры и другие проекты дизайнеров в профилях Алёны Мышкиной и Дарьи Луковниковой
__________________________
СМОТРИТЕ ТАКЖЕ…
Еще 39 идей для спальни-гостиной — в рубрике « Фотоохота »
В ВАШЕМ ГОРОДЕ…
Найдите дизайнера на Houzz в вашем городе — закажите собственный проект