Содержание
Найдено проектов: 0
Найдено проектов: 0
![]()
![]()
![]()
![]()
![]()
![]()
![]()
![]()
![]()
![]()
![]()
![]()
![]()
![]()
![]()
![]()


Основная причина популярности малоэтажного строительства – обеспечение максимально комфортных условий проживания. Это стало возможным благодаря использованию автономных инженерных сетей и внедрению современных материалов и технологий. Одним из востребованных вариантов строительства считаются проекты одноэтажных домов с тремя спальнями.
Особенности проектов одноэтажных домов с тремя спальнями
Одноэтажные здания обладают несколькими преимуществами, которые обусловили широкое распространение таких проектов в частном домостроении:
- Низкая нагрузка на фундамент. Она позволяет возведение постройки в условиях слабонесущих грунтов;
- Отсутствие в проекте лестниц и проходов коммуникаций на более высокие этажи. Благодаря этому, планировка постройки в один этаж позволяет эффективно воспользоваться имеющимся пространством;
- Более высокий уровень комфорта для пожилых людей, маленьких детей и лиц с ограниченными возможностями, так как у них отсутствует необходимость подниматься на второй этаж или еще выше.
Важная особенность проектов одноэтажной постройки – создание оптимальных условий для проживания под одной крышей двух или даже трех поколений одной семьи. Поэтому востребованными становятся такие проекты, которые учитывают размещение как минимум трех спален и наличие одного просторного помещения, где смогут собраться все обитатели. Это необходимо для комфортного проживания многочисленных членов семьи, причем каждое поколение получает собственное автономное пространство.
Примеры готовых проектов
В связи с повышенным спросом разработано множество разнообразных проектов одноэтажных домов с 3-мя и более спальнями. Типичный пример – проект №58-01. Коттедж высотой в один этаж обладает большой площадью (197,08 кв. м) Она позволяет разместить не только три просторных спальни (от 15,3 до 18,5 кв. м), но и, благодаря грамотной планировке, отделить зону отдыха от гостиной и кухни-столовой обширным холлом (23,7 кв. м.)
Размещение в одноэтажном доме трех спален реально осуществить даже в проекте постройки маленькой площади. Образец подобного решения – проект №59-61 общей площадью всего 102 кв. м. Три спальные комнаты разделены просторной гостиной (20,6 кв. м.), в которой могут комфортно разместиться обитатели дома. Важная особенность плана здания – одна спальня располагается от двух других отдельно. Это делается для размещения там семьи с маленьким ребенком, чтобы его плач или беспокойство не мешали спать остальным. Или напротив, для отдыха пожилых людей подальше от беспокойной и шумной молодежи.
Наиболее стандартный вариант одноэтажного коттеджа с тремя спальными комнатами представлен на готовом проекте №62-03. Его черты:
- четкое разделение на зону отдыха и развлечений;
- расположение одной спальной комнаты отдельно от других;
- наличие большого помещения – гостиной площадью 42 кв. м.
Важным бонусом проекта выступает присутствие в планировке просторной кухни-столовой (17,6 кв. м).
Сколько спален должно быть в доме?
Основное преимущество частного дома в его пространстве и достаточной жилой площади. Как правило, в квартирах чувствуется нехватка последней, особенно если семья большая. В 2-х, 3-х комнатных квартирах не получится больше двух спален, да и для личных вещей места недостаточно. При смене сезона начинается тасование одежды. Осенью на антресоли прячутся летние вещи, весной – зимние. А даже среднестатистической семье с двумя детками, особенно если дети разнополые, нужны три спальни: одна для родителей и две детские. А если детей больше, так и вообще говорить не о чем. В таком случае, проекты домов с тремя спальнями – просто находка. Естественно, кроме спален в доме должны быть еще санузел, прихожая, гостиная, столовая, кухня, по желанию кабинет и прочие комнаты. Даже если в семье один ребенок, третью спальню можно отвести под комнату для гостей или попросту подождать пока в семье будет пополнение.
Проект дома с тремя спальнями может предполагать любую этажность, планировку или стиль. Не имеет значения и материал, с которого строится дом. Хорошо, когда все спальни сосредоточены в одной части дома. В таком случае, получается, своего рода, зона отдыха. Это удобно тем, что грохот посуды на кухне не будет мешать спящим членам семьи. Кроме спален в этой зоне может быть ванная комната и гардероб. Если дом одноэтажный, то под спальни отводится часть дома, приблизительно половина. Во второй размещается кухня, столовая, гостиная, хозяйственные помещения и прочее. Но еще удобней, когда в доме есть мансарда или второй этаж. Тогда зона отдыха будет еще удобней. Кроме того, что второй этаж имеет лучшую звукоизоляцию, так он еще и теплее. Это связано с тем, что первый этаж выполняет функцию воздушной прослойки. На нем пол надо утеплять, желательно положить гидроизоляцию, что бы холод и сырость не тянули с подвала или от земли. А вот пол спален будет гораздо теплее.
Где и как можно купить проект с тремя спальнями?
Получается, что три спальни в частном доме – это оптимальное количество, для современной семьи с двумя детьми. Проекты домов с тремя спальнями можно посмотреть и купить на сайте нашей компании Дом4М. Мы предлагаем своим клиентам широкий ассортимент готовых проектов, но, также, можем сделать и индивидуальный. Последний будет разработан специально под заказчика. Такое проектирование начинается с изучения участка: состава грунта, ландшафта, близости грунтовых вод. Естественно, цена на индивидуальные проекты домов с тремя спальнями будет немного выше, чем на готовые, но, в целом, все цены компании экономически обоснованы и доступны. Также, при необходимости, возможна адаптация понравившегося типового проекта. Эта услуга особенно важна для такой страны, как Россия. Огромнейшие просторы, различный климат и погодные условия в разных регионах большой страны, способствуют разнообразию используемых строительных материалов. К примеру, то, что хорошо в Краснодарском крае, вряд ли подойдет на Дальнем Востоке. Возможна адаптация фундамента или переориентация каркасного дома под кирпичный, при этом внешний вид дома будет максимально сохранен. В любом случае, выбирая проект дома с тремя спальнями лучше сначала проконсультироваться со специалистами. Сотрудники нашей компании подскажут, какой проект больше подойдет к тем или иным условиям, и помогут выбрать оптимальный вариант.
Сегодня покупка любого проекта сводится к посещению сайта, нажатия кнопки «купить» и заполнения несложной формы. Получить проект можно при помощи курьерской службы, самовывозом с офиса компании или получить по почте.
Собираясь строить дом, можно заказать его проектирование специалисту, а можно попытаться переделать один из имеющихся вариантов под свои требования. В любом случае, надо четко представлять чего вы хотите. Очень желательно, чтобы ваши желания были хорошо продуманными. Не все, что кажется привлекательным как идея, удобно в эксплуатации. И такие «мелочи» надо знать. Часть информации разберем, пытаясь найти подходящий проект одноэтажного дома с тремя спальнями. Почему так? Потому что это наиболее распространенный вариант, который подходит для семей из 4 человек. Именно таких большинство.
Общие принципы планировки
Когда вы ищите готовые проекты одноэтажных домов с тремя спальнями или пытаетесь создать на основе найденного свой, важно помнить несколько моментов.
- Для условий климата с холодными зимами наличие тамбура крайне желательно. В этом случае холодный воздух при каждом открывании дверей не будет попадать в жилые помещения. Если тамбур совсем уж не вписывается в пределах стен, его можно вынести и сделать в виде пристройки. Не самое изящное решение, но имеет право на существование.
- Все помещения, где требуется подведение воды/канализации (кухня, ванна, туалет, котельная) располагать лучше рядом. Так инженерные системы будут проще, меньше потребуется материалов, получится значительно дешевле.

При планировании дома надо придерживаться определенных правил
Это те принципы, которых желательно придерживаться. Но и это не догма. Все можно решить (кроме требований к котельным). Решения, действительно существуют разные, под разные запросы и вкусы. Требуется только желание и определенная сумма.
Если все три спальни разместить рядом
Многие проекты одноэтажных домов с тремя спальнями спланированы таким образом, что все спальни находятся в одной стороне дома. С одной стороны это удобно. Относительно шумные помещения — гостиная и кухня оказываются в противоположной стороне. С другой стороны, не всем нравится такое расположение — опасаются что дети могут оказаться свидетелями ненужных сцен.

Пример планировки одноэтажного дома с тремя спальнями на 110 квадратных метров
В приведенном выше проекте именно так планировка и сделана: все три спальни находятся в правой стороне дома и имеют примерно одинаковую площадь. Из положительных моментов — все спальни от гостиной далеко. При таком расположении комнат можно в гостиной спокойно смотреть телевизор, принимать гостей, не боясь помешать отдыху.
Из недостатков — туалет и ванная находятся далеко от кухни и котельной. Не самый удобный вариант для прокладки коммуникаций. Из других особенностей — длинный коридор со множеством дверей. Эту площадь никак не используешь, так как свободные простенки очень маленькие.
Проект одноэтажного дома с тремя спальнями и террасой
При планировании террасы, обращать внимание надо сразу на несколько моментов. Первый — для оптимальной освещенности лучше, если терраса выходит на юг или восток. Второе — из какого помещения будет выход. Чаще всего делают выход на террасу из гостиной. Это самый логичный случай. Второй вариант — выход из коридора, который, как правило, примыкает к гостиной или кухне (гораздо хуже, но возможно). Обратите внимание, что очень удобно, если рядом с входом на террасу находится кухня — заносить/выносить блюда, напитки и т.п. Ведь терраса часто используется именно для посиделок на открытом воздухе.
Эти два момента уже частично определяют планировку вашего дома — гостиная должна иметь выход на южную или восточную сторону. Значит ее положение определено. К гостиной должна примыкать кухня, а еще желательно все помещения, подключаемые к техническим коммуникациям «собирать» в одной зоне … То есть, вы практически решили, где находятся гостиная, кухня, технические помещения. Осталось расположить спальни и организовать удобный проход.

С террасы должен открываться интересный вид
Но это еще не все, что надо учесть при планировании террасы. Есть третий момент — ее размер. Тут подход индивидуальный — кому-то требуется много места, кому-то достаточно поменьше. Интересный вариант — Г-образная терасса, которая охватывает южную и восточную стены строения. Если ее остеклить, можно превратить в летний сад… Если вам это интересно.
И четвертый момент, на который тоже стоит обратить внимание при разработке планировки дома. Терраса интенсивно используется и является любимым местом отдыха, если с нее открывается вид на сад, красиво оформленный задний двор, на речку и т.п. Если же взгляд упирается в забор соседа, никому это не интересно. При таком положении терраса не используется, постепенно превращается в «техническое помещение» — поставить газонокосилку, сушилку, и т.д. Это определяет еще и положение дома на участке. То есть, большую часть задач по планировке дома вы решили.
Вариант 1: с террасой вдоль всей короткой стены
Давайте рассмотрим несколько проектов одноэтажных домов с тремя спальнями и террасами. В представленном варианте выход на террасу сделан из гостиной. Сюда же выходит кухонное окно. Если сделать широкий подоконник, открывающееся полностью окно, можно передавать блюда через окно.
Все технические помещения собраны в одном месте и расположены возле кухни. Спальни находятся в противоположном конце дома, что, в общем-то, удобно — можно принимать гостей или смотреть телевизор в гостиной и не мешать тем, кто решил отдохнуть.

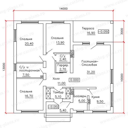
Проект одноэтажного дома с 3 спальнями и террасой
Дополнительная несущая стена в этом проекте одна — почти посередине вдоль длинной стороны дома. Кухня-гостиная едина, но можно установить перегородку и разделить помещения. В этом случае придется выделить часть гостиной, но, при данной площади — почти 17 метров — это не очень критично.
Спальни, в этом проекте, имеют разные размеры: 9, 11, 13 метров. Удобно это или нет — решать вам. При желании, размеры спален можно увеличить за счет уменьшения площади котельной (при 3-х метровых потолках достаточно площади в 5 квадратов, так что ресурс есть). Самую маленькую спальню можно увеличить, если перенести шкаф на другую стену, сдвинув перегородку, отгораживающую гостиную. Кстати, этот проект одноэтажного дома с тремя спальнями имеет еще один плюс — гардеробную при входе. Это действительно удобно.
Вариант 2: с короткой террасой вдоль длиной стороны дома
Рассмотрим еще один вариант планировки одноэтажного дома с тремя спальнями и террасой. Он отличается положением «влажного» блока — кухни/ванной/котельной/туалета. Они перенесены на противоположную сторону. Площади спальных комнат «выровнены» за счет уменьшения площади кухни. Обратите внимание: тамбур сделан выносной. Это тоже внесло свой вклад в то, что при относительно небольших размерах дома — 10*14 метров (площадь 140 квадратных метров) — размеры всех комнат солидные, ширина коридора — 1,7 метра, что тоже неплохо.

Проект одноэтажного дома с тремя спальнями и террасой
Терраса имеет выход из гостиной, занимает только часть длинной стены. Если этот вариант обыграть, получится очень неплохо. Например, рядом можно поставить пруд, установить фонтан, разбить красивую клумбу.
С местом под автонавес или гараж
Если рядом с домом надо разместить навес для машины или гараж, можно изменить планировку так чтобы вход в дом был ближе к месту стоянки. Тогда есть возможность объединить навес стоянки и крыльца. Получится может очень даже интересно.
При планировании навеса лучше найти место под две машины. Даже если машина у вас одна, к вам будут приезжать гости и намного удобнее, если ее можно поставить под крышу. Расходы на обустройство не слишком отличаются, а всегда надо смотреть на перспективу. Может и у вас появится вторая машина.

Проект 1 этажного дома стремя спальнями и навесом для машины
Чем хорош еще навес для машины? Под ним можно оборудовать место для хранения всякого инвентаря: автомобильного, садового. Там же можно отгородить место под дровник или поленницу — чтобы иметь возле дома запас сухих дров. Вообще, использовать эту зону можно по-разному. И оптимальные размеры ее — 8*9 метров или около того. Это, если площадь участка позволяет. Если нет, можно исходить из минимальных габаритов — на 2 метра шире и на 1,5 длиннее вашего авто.
Представленный выше проект одноэтажного дома с тремя спальнями имеет площадь 100 квадратных метров, выполнен в виде прямоугольника со сторонами 8,8*12 метров. Расположение спален все такое-же — одним блоком, все технические помещения также сведены в одном месте. При такой планировке коридор получается совсем небольшим, что многих обрадует, но это будет «проходная» зона, в которой ничего не поставишь.
Если надо спальню родителей разместить отдельно
При выборе планировки многие считают, что спальню родителей надо располагать на некотором расстоянии от детских. В этом случае подход к планировке меняется — оптимальна вытянутая прямоугольная форма дома. Длинную сторону делят на три части две несущие стены.

Такой, дом с Г-образной планировкой по стоимости выходит более дорогим, чем прямоугольный или квадратный
Вариант 1: без коридора
Если разделить дом на три части, есть возможность разработать планировку дома с тремя спальнями без коридора. Одна треть дома делится на две спальни для детей, среднюю часть занимает совмещенная кухня/гостиная, последняя треть делится между входной группой/санузлом и спальней родителей.
Там где расположена спальня для родителей, из кухни/гостиной организован вход в санузел. Насколько удачно такое решение? Плюс тут видится такой — большая кухня/гостиная. Но она — полностью проходная. То есть, уединиться в ней точно не получится. Возможно, вам нравится такая идея. Хотя, чтобы оценить удобство/неудобство, стоит пожить в таком доме. Обычно это далеко не всем нравится, хотя на стадии «идеи» все казалось заманчивым.

Расположение комнат в одноэтажном доме с тремя спальнями — комната родителей расположена отдельно
Обратите внимание, что этот проект одноэтажного дома с тремя спальнями не имеет котельной. Если она необходима, выделить ее можно за счет уменьшения площади кухни/гостиной. Но тогда надо будет продумывать планировку, как организовать вход в нее. Возможный, но не очень удобный вариант — из кухни, если она будет расположена возле ванной. Второй — с улицы. Но тогда уж, можно сделать пристройку к дому. Хотя, это определяется размерами дома.
Вариант 2: с коридором
Планировку с двумя детскими и вынесенной подальше спальней родителей можно реализовать в квадратном доме (на рисунке ниже). Минимально возможные размеры — 12*12 метров. По площади это чуть больше 140 квадратов. В этом случае габариты всех помещения близки к оптимальным (квадратные, имеют площадь более 10 квадратных метров). Гостиная совмещена с кухней но не является проходной.
При возможности/желании можно сделать и в прямоугольном доме, просто квадрат более предпочтителен, так как стоимость квадратного метра жилья получается немного ниже. Надо сказать, что выигрыш совсем небольшой, так что не стоит на этом особо заморачиватсья. Лучше исходить из удобства, ведь проект одноэтажного дома с тремя спальнями выбираете для собственной жизни.

Проект квадратного одноэтажного дома с тремя спальнями
В данном варианте планировки спальня родителей вообще обособлена. Достоинство приведенного варианта — в детских есть место под гардеробные. Есть тут и недостаток — «мокрые» помещения находятся на противоположных краях дома. Устройство инженерных систем будет сложнее (кроме канализации и водопровода придется думать еще и об отдельной вентиляции).
Не всем нравится идея объединения кухни и гостиной. В данном случае можно легко проблему решить, установив перегородку. Вход в кухню может быть как из коридора, так и из гостиной.
Но, если не вносить других изменений, вход в гостиную только через кухню, что неудобно. Решить проблему можно сделав некоторые трансформации. Первая — «утопленная» входная зона становится «нормальной», в площади стен, разделяющая коридор перегородка убирается. Образуется большая входная зона, но без теплого тамбура. Зато получаем дополнительное большое по площади помещение, которое можно неплохо оборудовать. Правда, это уже другой проект одноэтажного дома с тремя спальнями (смотрите ниже).
Из этой зоны можно сделать вход в гостиную. Он получается рядом со входом, что вполне логично. Правда, функциональной остается только часть помещения, но «ущерб» можно минимизировать, приблизив двери.

Один из вариантов
Можно пойти еще дальше — убрать перегородку, отделяющую гостиную от коридора. Стена тут несущая так что потребуется установка колон. Но планировка дома будет в современном стиле — от входа единое пространство, выполняющее роль гостиной и общей комнаты. Для многих это кажется удобным.
Ещё варианты
Имея определенный набор помещений и требования по их расположению, слишком много вариантов не получишь. Приведенные ниже планировки отличаются в некоторых деталях. Может, один из них вам и подойдет.

Одноэтажный дом с тремя спальнями, эркером и террасой

Проект одноэтажного дома с тремя спальнями и террасой (90 кв. м.)

Площадь 130 кв. м, есть кладовка со входом из кухни

Если нужны раздельная кухня и гостиная. Практичное расположение с небольшим коридором

Одноэтажный дом площадью 160 кв. м, с тремя спальнями и кабинетом, котельной и небольшой угловой верандой